Shared by the architects upon our invitation.

The child’s perspective was our point of departure when transforming the old boiler plant at Nobelberget into a preschool – with a new design and all the colours of the rainbow. The architecture reflects children’s curiosity and the sense of wonder that inspires play, imagination and learning.
History and the future meet in an imaginative combination
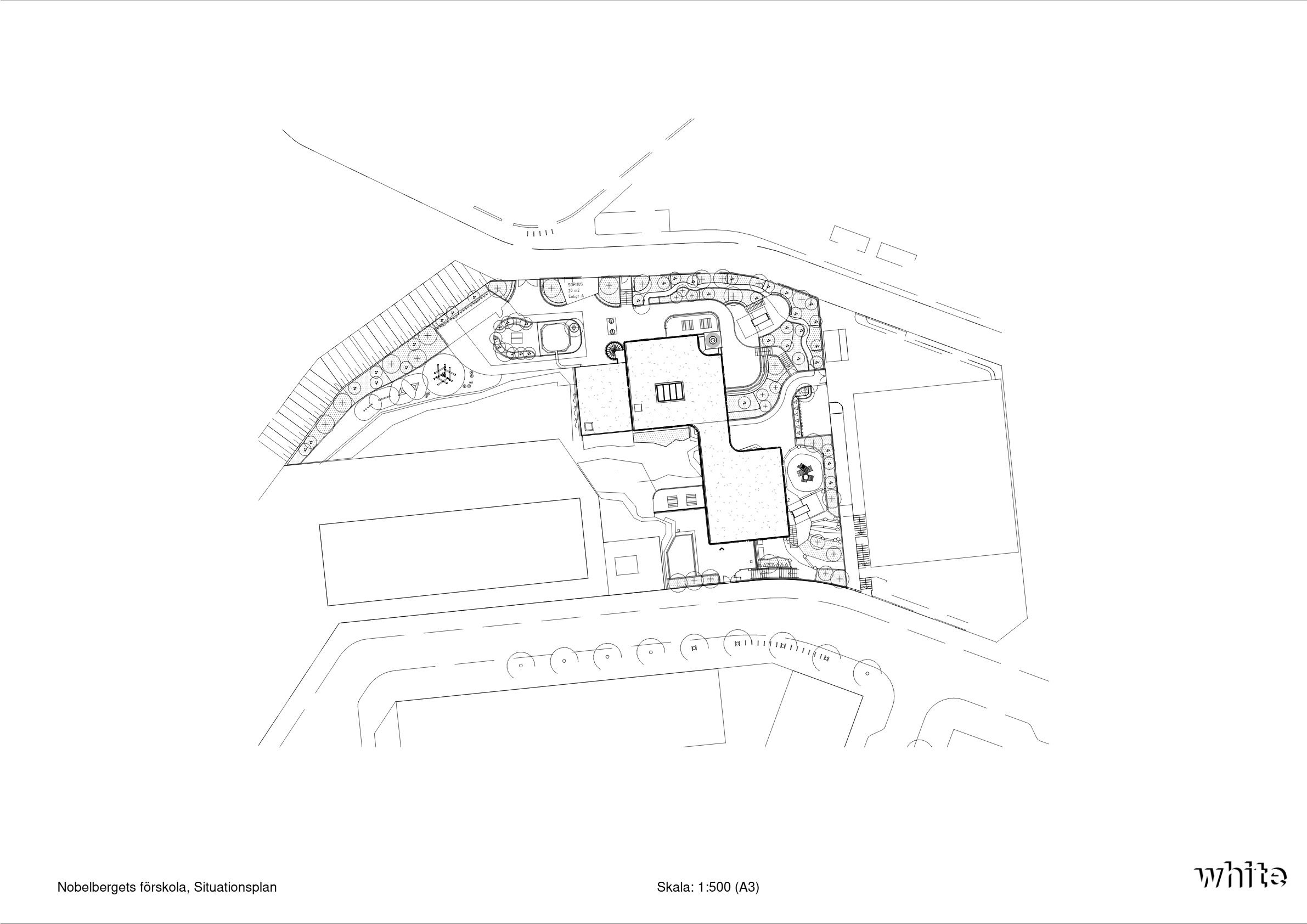
In the rapidly growing district of Nobelberget, old industrial quarters are being transformed into homes. The old central boiler plant, which supplied the area with heat from the 1940s until quite recently, is located in the heart of the area.
The main feature of the old brick building is its roughly 40-metre tall chimney, a local landmark. Rather than demolishing the building, the decision was taken to preserve as much of it as possible and to convert it into a preschool where the youngest local residents could grow and develop.


The form of the new preschool is inspired by the child’s perspective, and the central boiler plant at Nobelberget becomes a space where history and the future meet in an imaginative combination.
A transformation project emphasising the history of the building
Over the years the building has undergone many renovations and repairs. These “growth rings” can be seen on the façade, for example, where older and newer bricks co-exist. Rather than attempting to smooth over the difference between old and new, we instead decided to continue as before and emphasise the building’s history.
Earlier extensions have been removed, old industrial windows have been restored, and the original concrete has been preserved instead of being covered with new bricks. Preserved joists have provided new opportunities to create spatial variations – to create more intimate environments, for example.
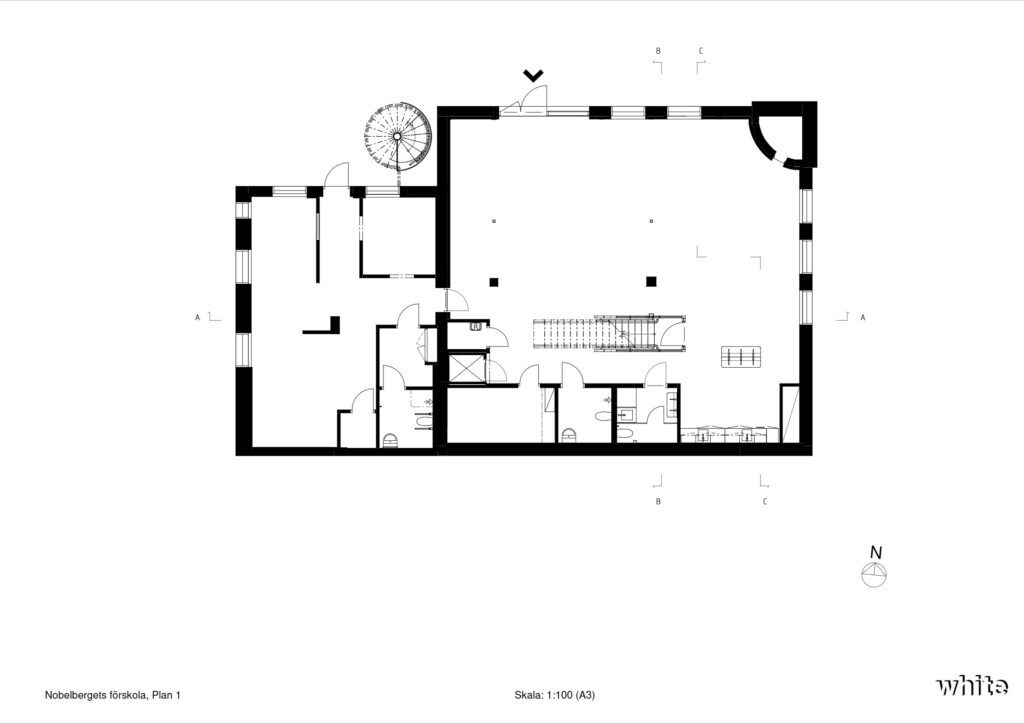
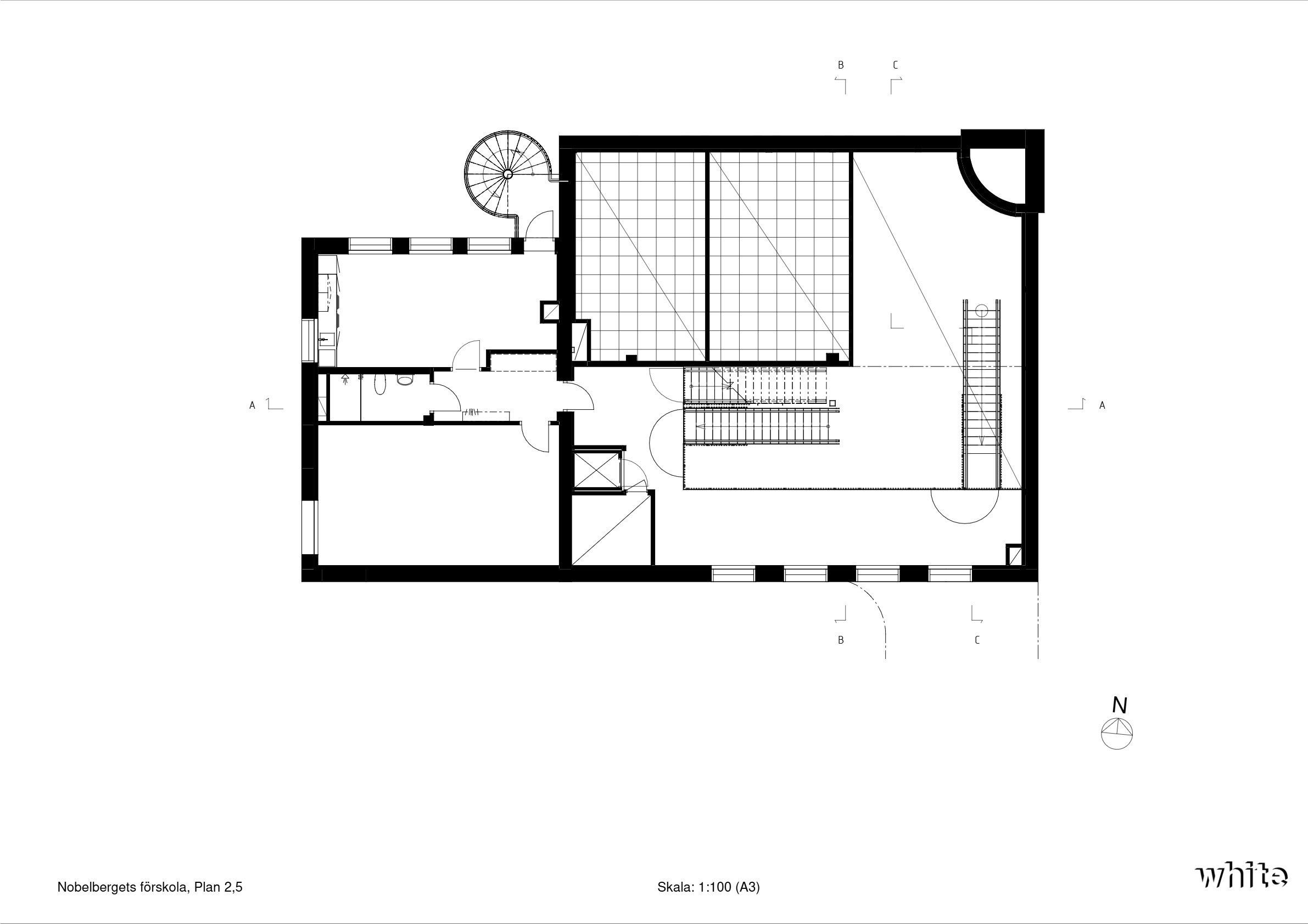
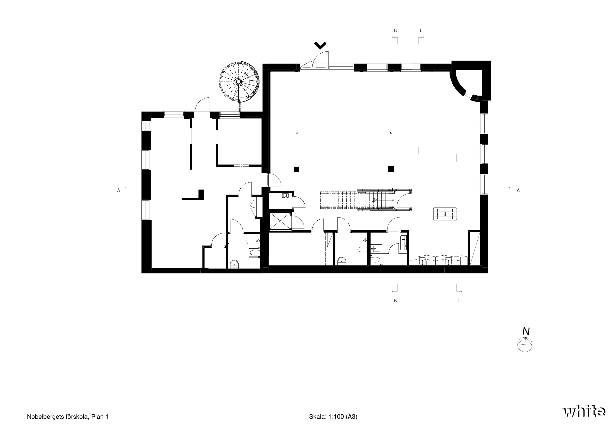
As you climb the new central staircase and come to the first floor, there is a sense of a visual explosion as an area with a ceiling height of more than four metres opens up before you. The space is ideal for dance, games and theatre. We also created a multi-functional loft here. The large windows with recessed seating can be used as cosy reading corners, but there is also a kind of vantage point here, from which the children can view and discover new aspects of their surroundings. Here you can look out over the spacious room, or out towards the courtyard and the reflective underside of the new additional storey.


A playful additional storey that embraces the old
The rainbow – the preschool’s new second floor – sits on top of the old central boiler plant and embraces the heavier brick building. The colours of the façade lend the building a light and playful expression, as does the feeling that the rainbow is floating above the much heavier brick building below.

The natural topography between the central boiler plant and the adjacent new street, Bergvägen, is steep. To create more indoor space without reducing the already compressed outdoor play areas, the new second floor also functions as a bridge. It provides a horizontal contrast to the vertical impression of the chimney and also creates an exciting play area for children to discover under the bridge. The underside of the bridge is clad in a reflective material, which allows the children to look up and see themselves from a different perspective.


” The central boiler plant will be a place where children have space to develop. Children have an amazing ability to discover the world time and time again thanks to their curiosity and imagination. In the design process, we were constantly inspired by the child’s perspective, and we strove to create stimulating environments that can be experienced in many different ways and from many perspectives.”
Elena Kanevsky, Lead Architect
Seamless interaction between outdoors and indoors
Outdoor play and physical activity are vital for children’s well-being and cognitive development. The design for the central boiler plant was therefore produced in close collaboration with Urbio landscape architects to ensure that the children can move seamlessly between the outdoor and indoor environments.


The design also has various visual references that blur the boundaries between outdoors and indoors and encourage imagination and new experiences. To let in daylight, create distinct entrances and take account of the site’s topography and surrounding infrastructure, the form of the building has been adapted through rounded forms – visual references to the chimney. On the second floor, windows have been placed next to the base of the chimney, which invites little noses to press themselves against the glass to look up towards the 40-metre-high structure that seems to disappear into the sky. The shape of the building, coupled with the variation in the topography of the site, means that the building is experienced in very different ways depending on where it is viewed from.


We must continue to become even better at including the child’s perspective in social planning and to draw on architecture so as to create better conditions for children to grow and learn. It is incredibly important for the social sustainability of our society and something that we must guarantee, not least now that the UN Convention on the Rights of the Child has become law in Sweden. The central boiler plant is a preschool that has been designed from beginning to end with the best interests of the child in mind, says Elena Kanevsky.
Project Gallery:
Cite: “Preschool at Nobelberget, Sweden / White Arkitekter 6 April 2026. GLSN. Accessed . https://theglsn.com/preschool-at-nobelberget-sweden-white-arkitekter/