Shared by the architects upon our invitation.

With the growth of Red House Ipiranga, the school sought a new space to accommodate its elementary school students. The school’s first unit was located in a nearby house, a heritage property that underwent renovations and restorations to become a welcoming environment for children. The major challenge in this new phase was finding a space that met the educational needs of the institution without losing the unique and historic character of the neighborhood.
Situated in Ipiranga, one of São Paulo’s most iconic neighborhoods, the new building chosen is an architectural example from the 1930s. The house, built between 1933 and 1934 by the Jafet family, has a timeless charm that aligns perfectly with the educational proposal of Red House Ipiranga. Upon entering the property located at Rua Bom Pastor, number 825, it felt like a predestined encounter: the house, in excellent condition, turned out to be the ideal space for the school’s new unit.
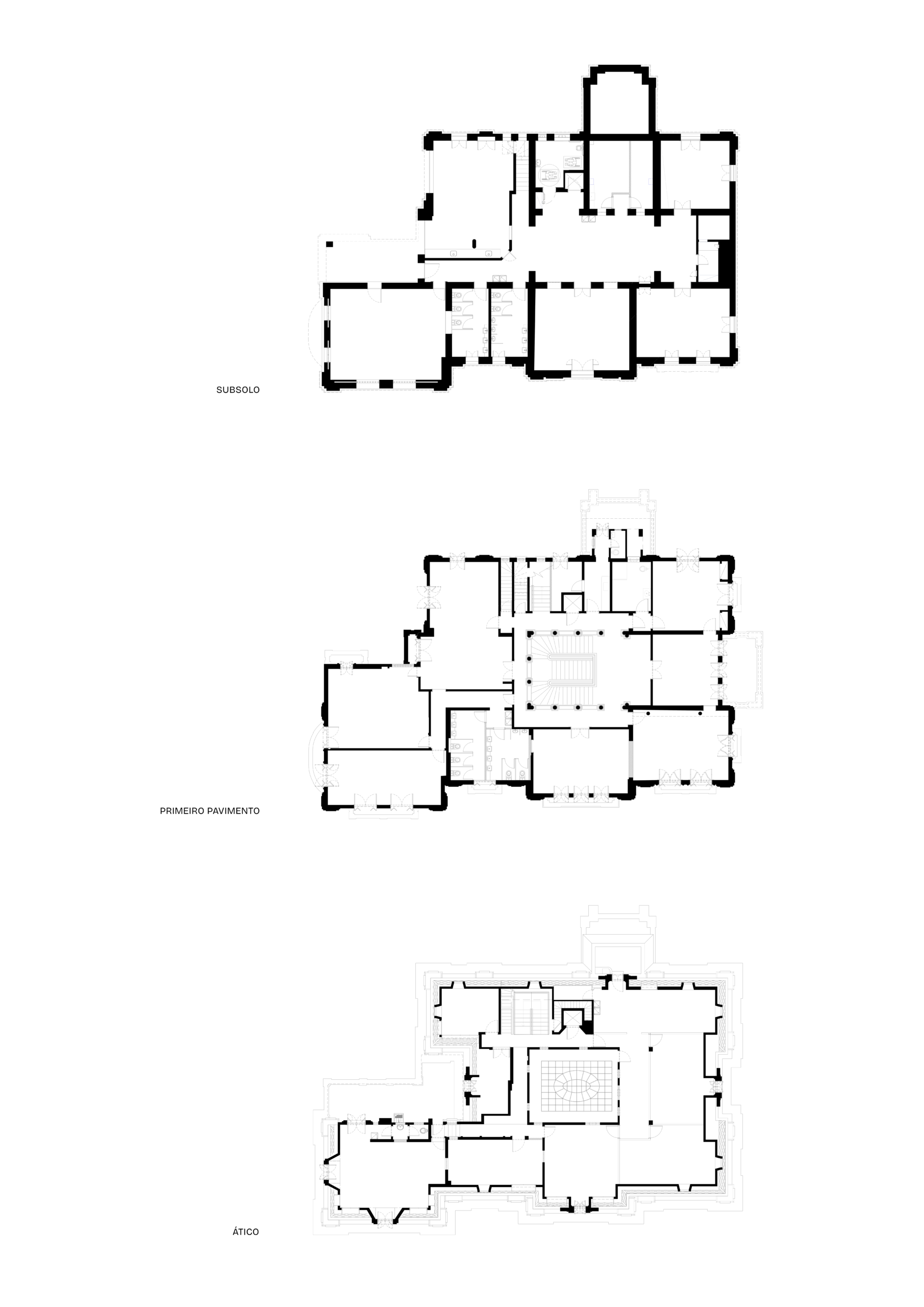
The adaptation project aimed to integrate the functional needs of education with respect for the historical characteristics of the house. We preserved the original architectural elements, ensuring that the beauty of the property, both inside and out, was maintained. The proposal included creating classrooms and spaces for other activities, respecting the original layout of the house while simultaneously creating suitable environments for learning.
Among the interventions, the restoration of the fountain, one of the property’s most significant symbols, stands out. It had been deactivated for years, and its reactivation brought back an important historical and aesthetic element to the space. Additionally, we renewed the gardens, restoring the landscape beauty that has always been part of the property’s identity.
With the adaptation of the new space, Red House Ipiranga not only expanded its facilities but also reaffirmed its commitment to preserving the historical memory of the neighborhood, providing its students with an environment that reflects the harmony between tradition and innovation in the educational process.
Project Gallery:
Cite: “Red House Ipiranga Bom Pastor, São Paulo / STUDIO DLUX 25 April 2026. GLSN. Accessed . https://theglsn.com/red-house-ipiranga-bom-pastor-sao-paulo-studio-dlux/