Shared by the architects upon our invitation.

The Learning Community at Quest is located on a 540 sqm piece of land, about 300 m from the sea-front in Besant Nagar, Chennai. It is a learning centre for children between the ages of 8 to 16 years. The centre acts as a learning and interaction space for children who are largely home-schooled or for those who follow the ‘unschooling’ pattern of education which involves teaching children based on their interests rather than a set curriculum.

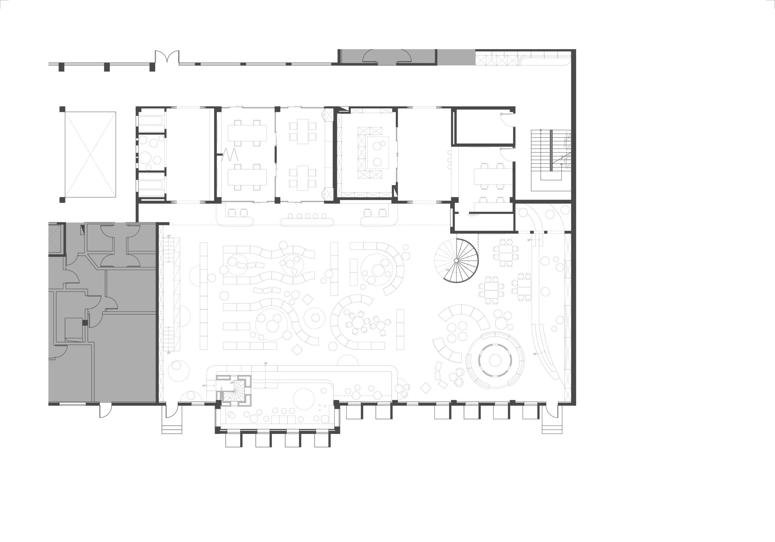
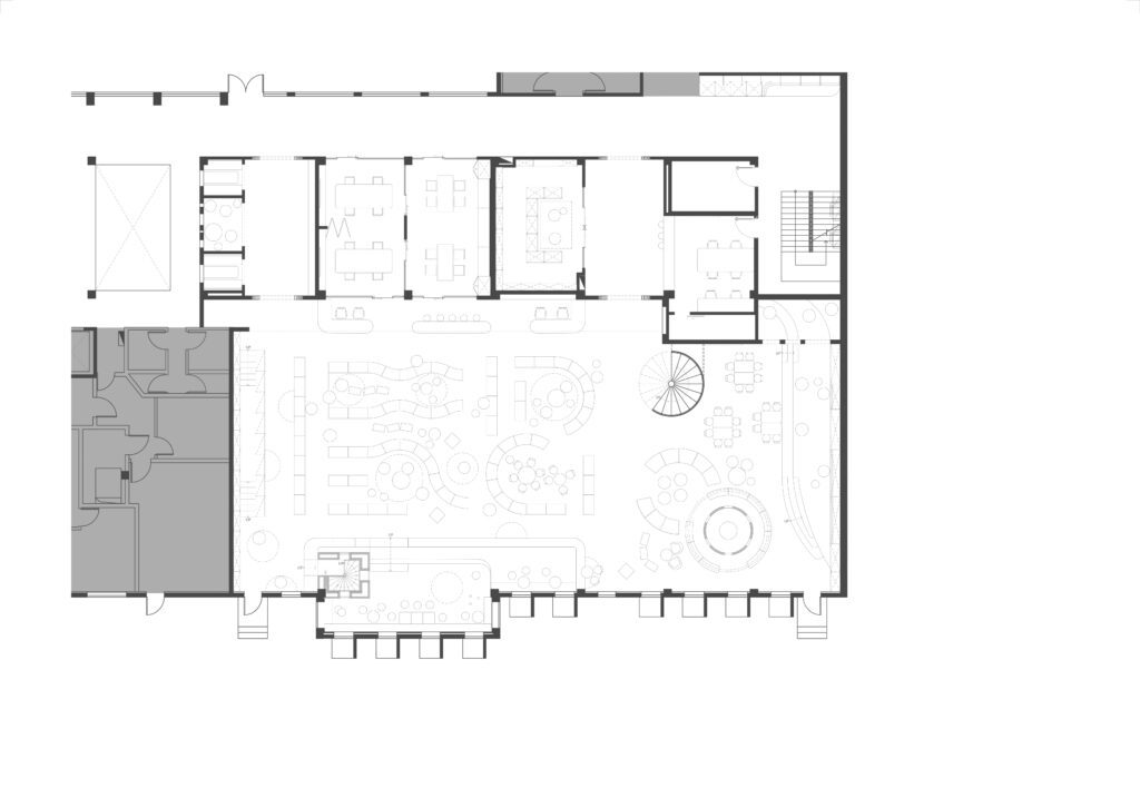
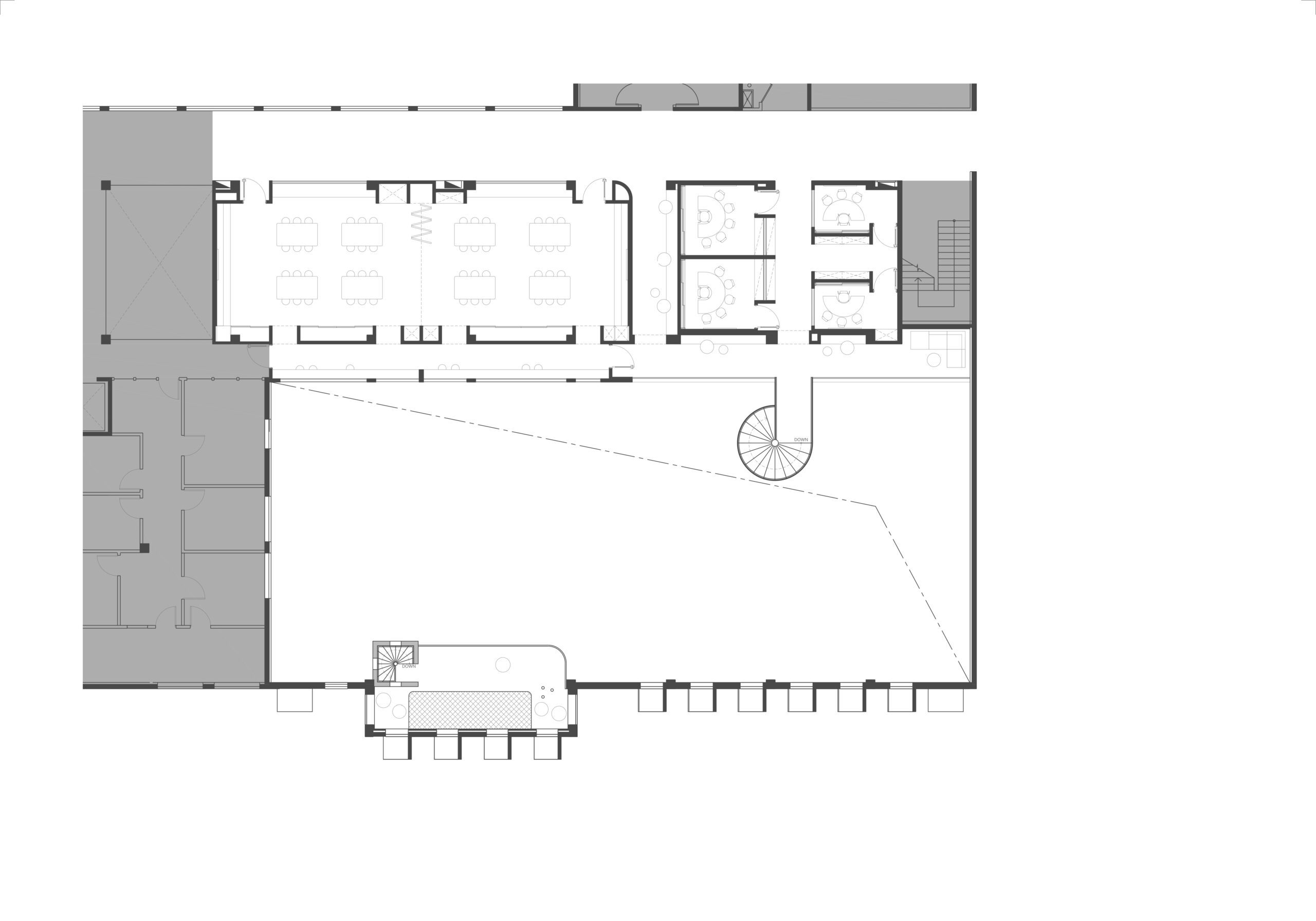
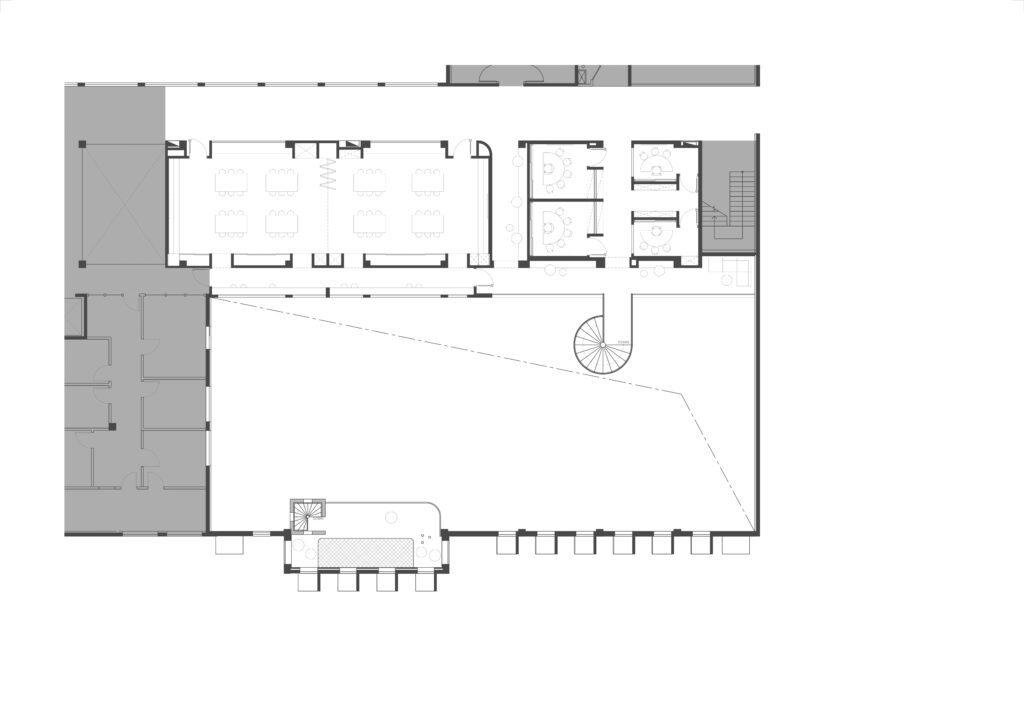
The learning centre has been designed as a collection of free-flowing volumes that give a feeling of space and visual connectivity. One gains access into the building through a tree lined front court that has a set of steps and a ramp. One enters the rectangular building footprint in the centre into an atrium-like volume that opens up to the full height of the building, with an amphitheatre rising to the right and a gallery space to the left. In section, the building opens up towards the South which is the ambient wind direction in Chennai. The Southern side of the site is raised in the form of a garden in order to harness the South breeze while also taking advantage of a wind channel caused by the extended road beyond the site. The amphitheatre connects the arrival space to the library above as one seamless volume overlooking the raised garden on the south. This garden can be accessed by a slide that begins at the library. Five classrooms are stacked on either side of the central atrium and inside this atrium is a metal staircase that winds its way up connecting all the levels. At the fourth level the staircase comes out of the building face in the form of a spiral stair that leads up to a roof top cafeteria which in turn opens out onto a landscaped terrace on the South.


From a climate sensitivity stand-point the eastern and the western walls of the building have been designed as insulated cavity walls with minimal openings, while the southern and northern walls have full length operable windows that allow the ambient South breeze in and are shaded by vertical aluminium aerofoil shaped louvres. The eastern and western walls are composite 400mm wide, made up of a 300mm wide cavity wall with a 50mm thick XPS infill as the inner layer with a bamboo-shuttered GFRC façade panel as a self-shading skin with a 25mm air cavity. This insulation system virtually cuts off all the heat that falls on these walls.



There is a sense of openness with no clear demarcation of space or volume – every space seamlessly blending with each other and the gardens beyond. The warm glow of glare-free natural light creates a cheerful ambience, the sense of fun being accentuated by the use of colour, with natural breeze wafting through the various levels – all of this provides in our opinion an ideal platform for learning.


Project Gallery:
Cite: “Learning Community at Quest, Chennai / KSM Architecture” 7 Oct 2025. GLSN. Accessed . https://theglsn.com/learning-community-at-quest-chennai-ksm-architecture/