Shared by the architects upon our invitation.

Located in Haikou, Hainan, China, Haikou Huandao Middle school is designed to accommodate teaching classrooms, function classrooms, students’ dormitory and dining hall for more than 1200 students, 24 classes. The design initiated from thinking about how to create a nurturing environment that celebrates creativity and interaction rather than examination-oriented learning cultures.


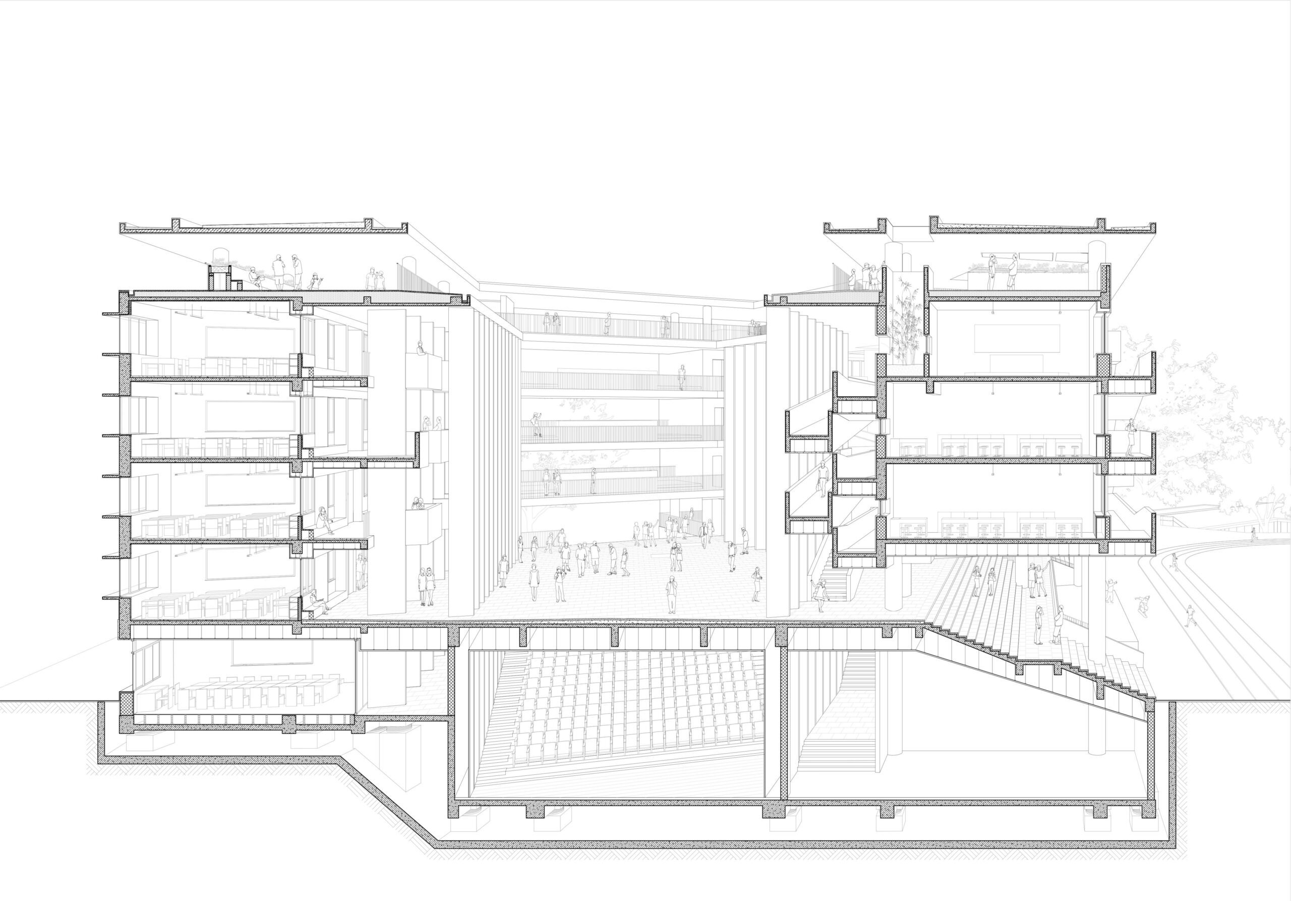
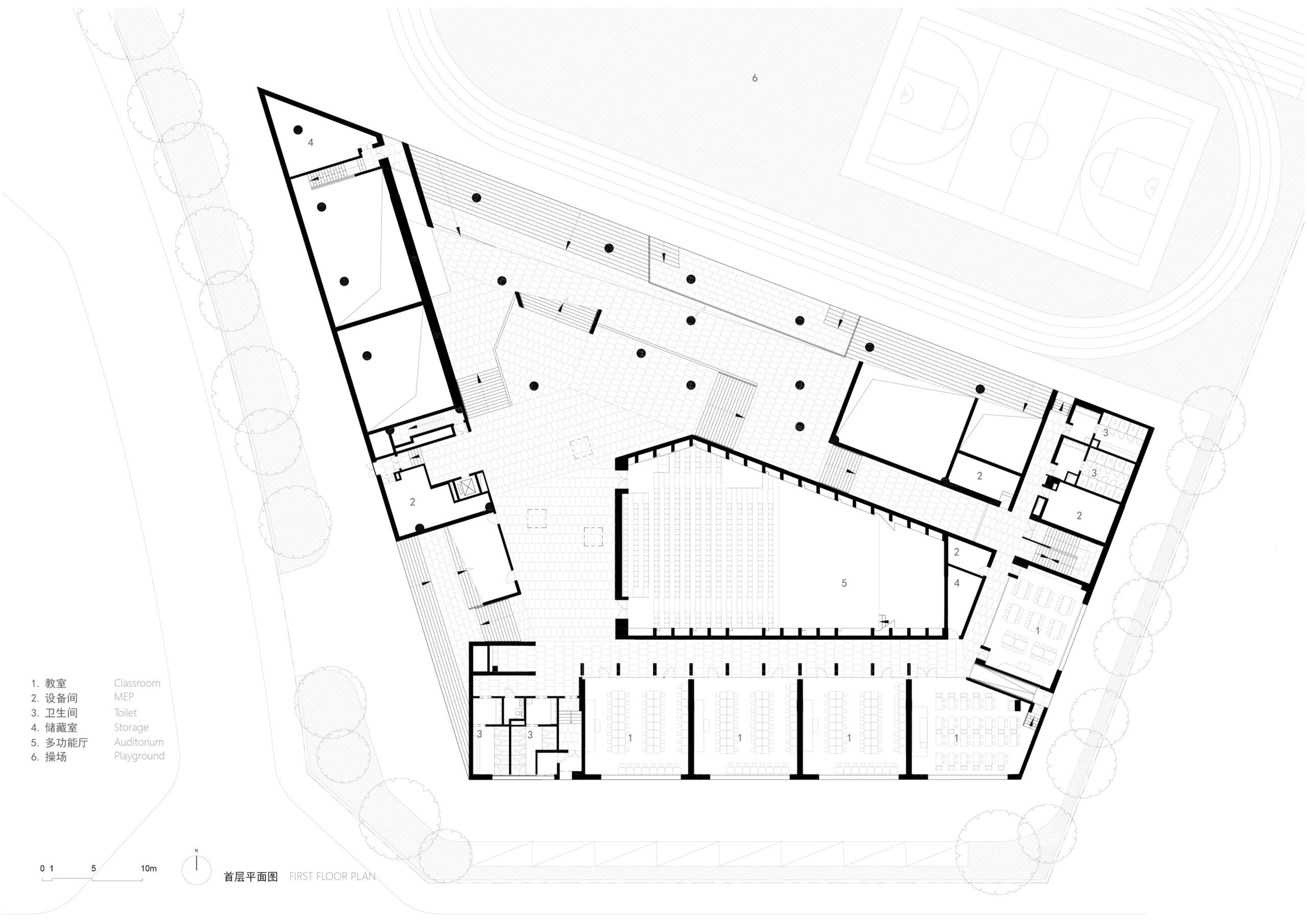
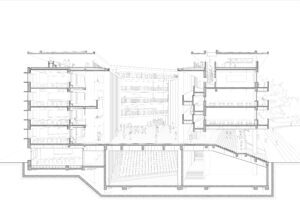
As the site is situated in the city center, where surrounding high-rise residential buildings heighten a sense of encirclement and compression, the overall layout of the school emphasizes on an introverted nature of architecture. Playground is placed centrally, while the teaching block and dormitory building are located at South and North sides of the site respectively. Two courtyards within the teaching block, one big and one small, are formed through a complex interplay of different volumes, enriching spatial hierarchy and visual connections.

Due to site constraints, the teaching block and the dormitory building are elevated on pilotis to open up the ground floor spaces, which allows visual and physical continuity. The central courtyard of the teaching block is raised up to the second floor and is connected with the playground through a grand staircase. The grand staircase serves not only as a place for relaxation and communication, but also a grandstand for spectators. Classrooms face outward and are distributed orderly in the east and south part of the teaching block, whereas function classrooms are more inward-facing and act as independent volumes. Among the function classrooms, art classroom adopts a curved roof to ensure even and stable ambient lighting, while music and dance classrooms are under arched roofs that help to enhance acoustics. The architecture also actively responses to the local tropical climate: stilt floor provides shading and protection against wind and rain; colonnade facilitates natural ventilation; rooftop platform offers additional activity spaces for students, and at the same time, reduces heat absorption and lowers indoor temperature.

The ways students utilize campus are not only confined to the use of traditional classrooms, but also the inhabitation of undefined public spaces, which contributes to a huge part of education. In this sense, school is a miniature city, bringing various everyday experience to the students apart from attending classes. The design therefore seeks to create diversified and integrated spaces that promote active and spontaneous learning: the central courtyard acts as a cohesive area for outdoor group activities; the widened corridor forms a series of interlaced semi-open balconies that allow small groups of friends to observe and contemplate; the zigzag ramps and stairs create more spaces for social interaction and also serve as vertical circulation.

Furthermore, a colorful tower-shaped space is placed at the eastern end of the central courtyard. The tower’s white and abstract façade is dramatically contrasted with the multiple scales of vertical geometry, colorful interiors and fascinating lighting variations, all of which create experience that embraces imagination and art.



Structurally, seismic base isolation system is adopted for earthquake resistance due to the special seismic geological conditions in Huandao. The teaching block is supported by a series of seismic isolators which are placed between the building and foundation. During earthquake, the damper underneath absorbs the vibration through elastic deformation, improving the seismic performance of structures and thus providing the building with strength and stiffness.
Project Gallery:
Cite: “Huandao Middle School, Haikou China / HUA Li / TAO (Trace Architecture Office)” 30 Sep 2025. GLSN. Accessed . https://theglsn.com/huandao-middle-school-haikou-china-tao-trace-architecture-office/