Shared by the architects upon our invitation.

Walking into a Fairy Tale
Beijing-based design office Studio Vapore has collaborated with the Western Academy of Beijing to renovate their elementary school library.

The project reimagines the library as a multifunctional learning space designed to inspire creativity and exploration while supporting modern educational needs.
A Library Designed for Exploration
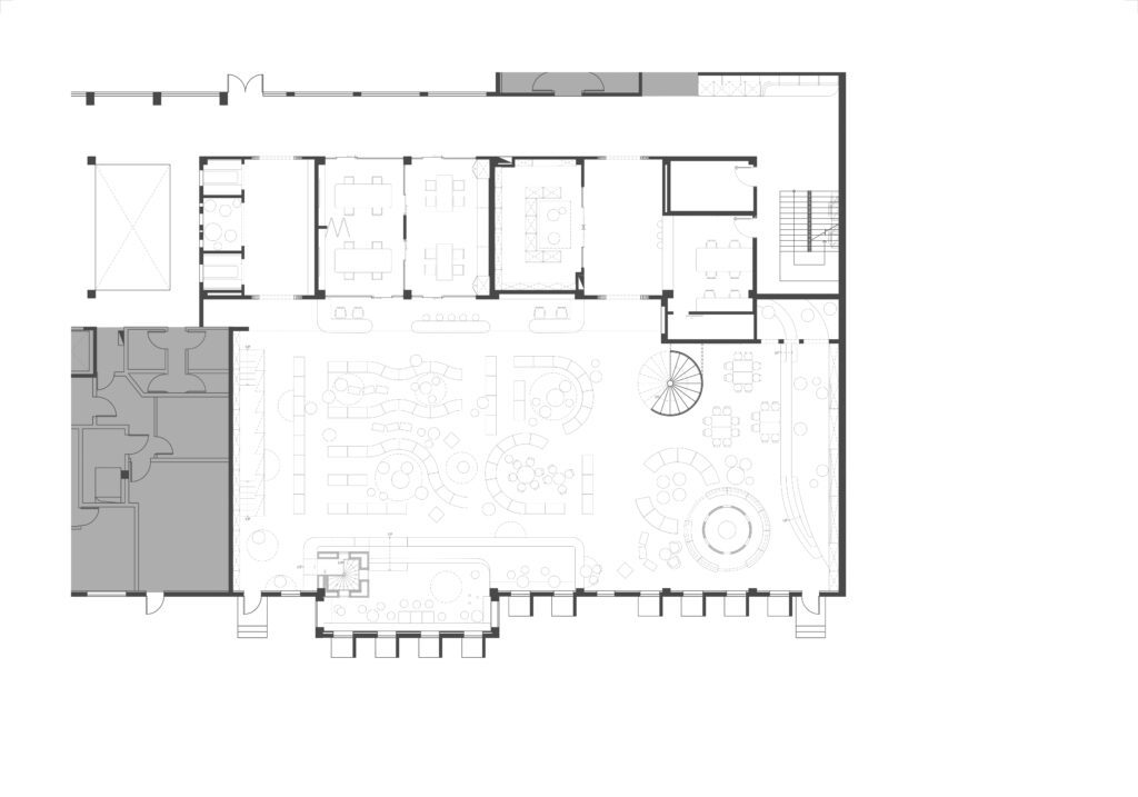
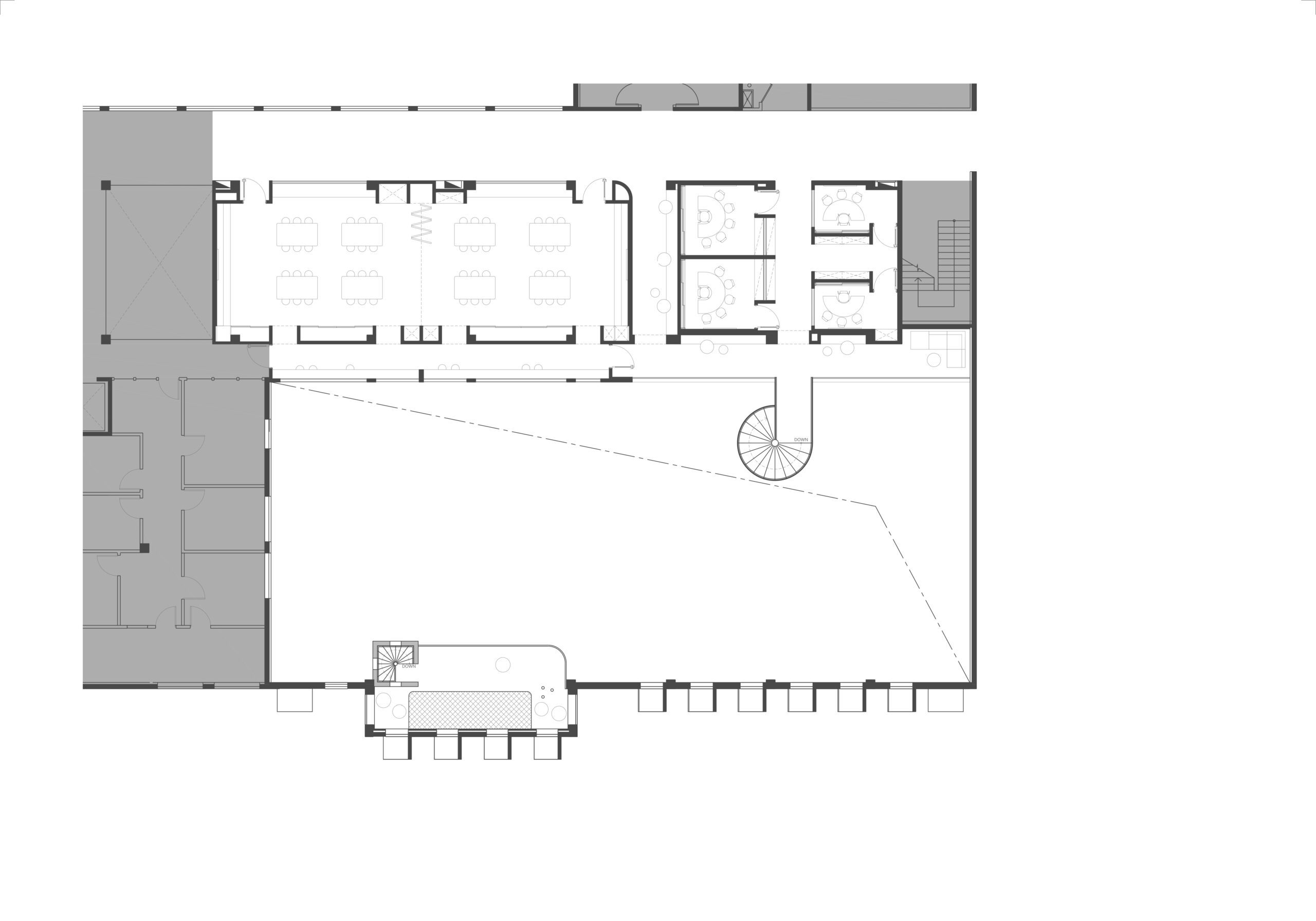
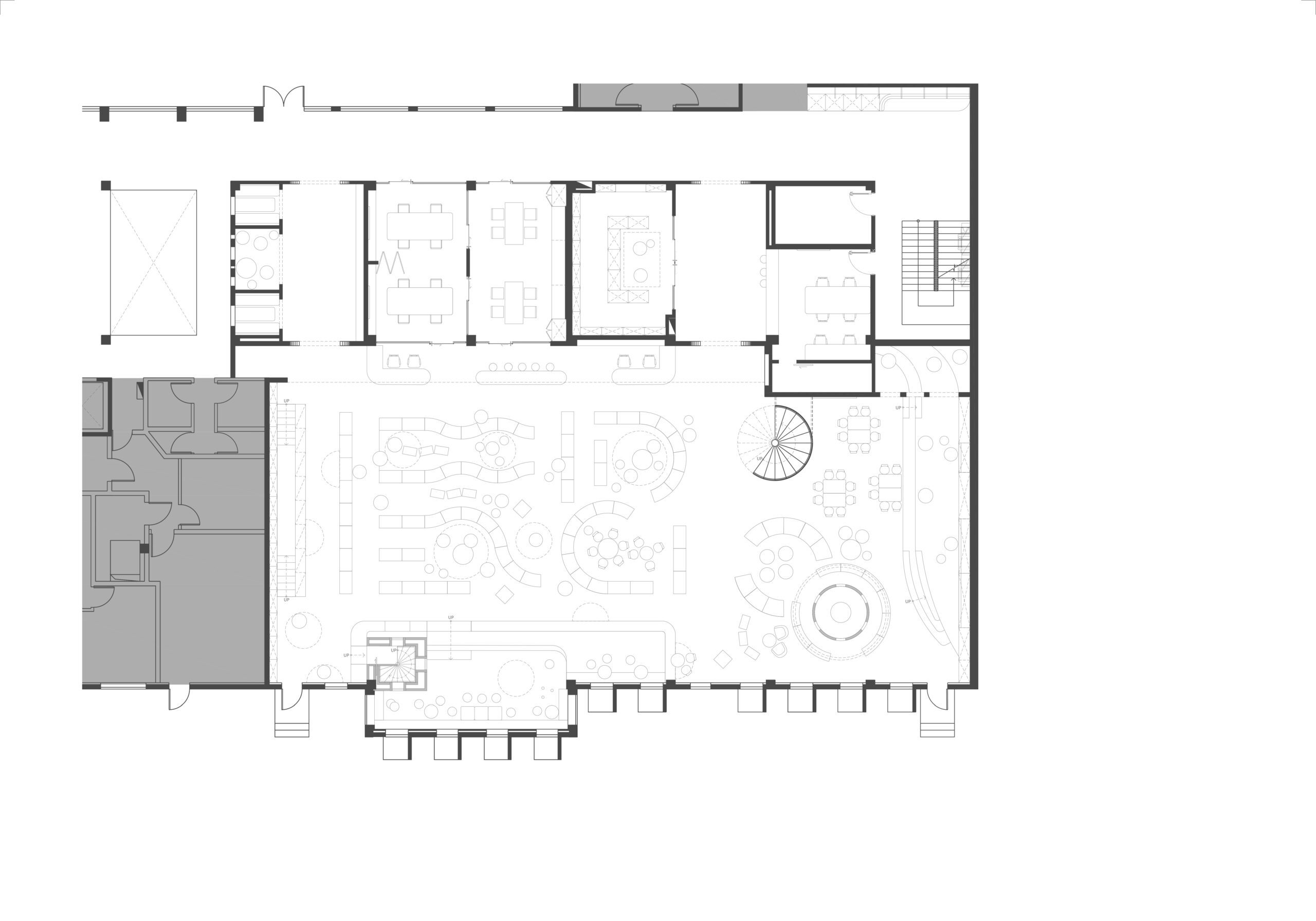
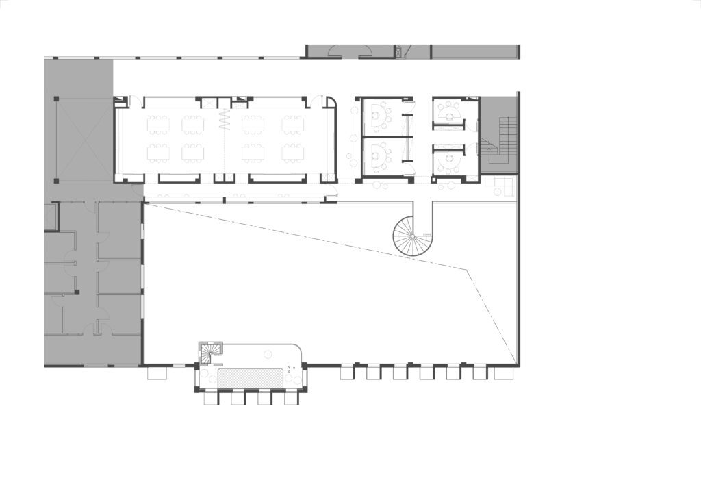
The renovation focuses on transforming the library into an engaging and flexible environment. Inspired by timeless children’s stories from around the world, the design features themed areas defined by custom platforms of varying heights. These platforms serve as reading nooks, quiet study spaces, and organizational zones for the library’s diverse book collections.

Highlights include a bamboo forest platform and a village-themed area with a hut and cave designed for group activities and storytelling. A central feature of the library is the Tibetan-inspired storytelling tower, which leads to a hang-out net for students. Modular, circular bookshelves allow for flexible layouts, accommodating both small group work and individual study. The library’s color palette, influenced by traditional Chinese temples, adds warmth and harmony to the space.



Interactive Features and Thoughtful Design
Interactive elements such as whispering tubes, periscopes, and hidden crystals introduce playful and tactile experiences, encouraging curiosity and engagement. Acoustic panels ensure the library remains conducive to simultaneous activities while maintaining a serene atmosphere for focused learning.

A Collaborative Vision for Education
This project reflects Studio Vapore’s commitment to creating educational spaces that are functional, inspiring, and aligned with the evolving needs of schools. The reimagined library is now a dynamic hub where students can explore, learn, and grow in an environment designed to foster creativity and imagination.
Project Gallery:
Cite: “Elementary School Library Renovation, Western Academy of Beijing / studio vapore” 4 Oct 2025. GLSN. Accessed . https://theglsn.com/elementary-school-library-renovation-western-academy-of-beijing-studio-vapore/